Bathroom Remodel
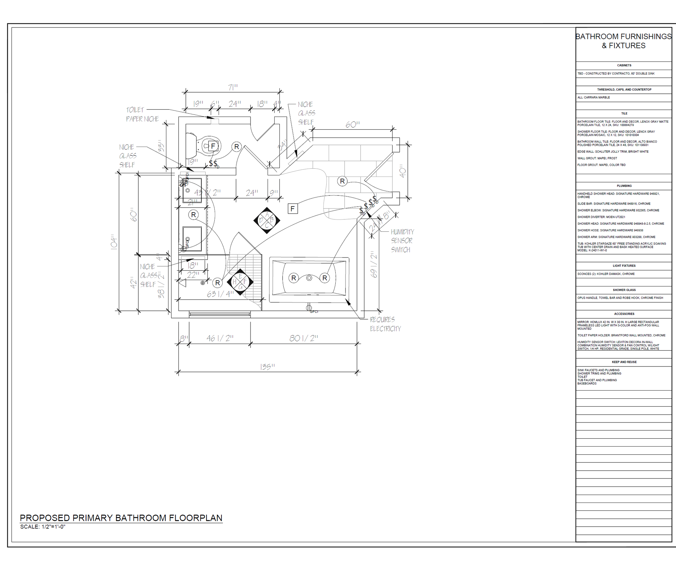
A dated early-2000s bathroom transformed into a timeless, spa-like retreat. I produced the full construction document set and 3D renderings in Revit, guiding the design from concept to completion with precision and clarity.
A dated early-2000s bathroom transformed into a timeless, spa-like retreat. I produced the full construction document set and 3D renderings in Revit, guiding the design from concept to completion with precision and clarity.